Un tipo di arredo informale ed eclettico e una gamma di colori schock, come il fucsia che spicca sul tutto, sono i tratti distintivi dell'appartamento sito in una palazzina romana di cinque piani nel quartiere di Ponte Milvio. Disabitata da molti anni, questa mini casa di soli 41 mq è stata oggetto di una ristrutturazione globale firmata dallo studio di architettura Remodulare, che ha saputo dare nuovo vigore agli spazi assecondando le richieste dei giovani proprietari soprattutto riguardo l'uso di colori decisi e vivaci e di una nuova e ampia cucina-living. "La fantasia dei proprietari non ha smesso di arricchire, nel corso del tempo, l'arredo della casa. Nonostante la forte caratterizzazione che abbiamo conferito a due pareti, dipingendole di un fucsia-bouganville, successivamente i padroni di casa hanno inserito altri elementi fortemente definiti", ci ha raccontato l'architetto Emiliano Ricci, dello studio Remodulare. "Qui il colore la fa da padrone. Ăˆ un'esplosione di tonalitĂ , in cui il fucsia e le innumerevoli gradazioni di rosa sono i protagonisti; ogni colore ed ogni oggetto è simbolo di ispirazione e fantasia ed ognuno ha una sua importanza e una sua peculiaritĂ . Sebbene siano scelte azzardate, l'ambiente non risulta opprimente, ma, anzi, trasmette brio e allegria. Un imprinting super giovane per una coppia chic ed estroversa che non ha intenzione di invecchiare mai!"

Collocata in una palazzina di cinque piani, la casa allo stato originario si presentava in condizioni pessime. "La casa aveva una soluzione distributiva tipica dei micro-tagli abitativi dell'edilizia economica e popolare", spiega l'architetto Ricci. "Era composta camera-tinello iniziale, con un mini salottino, mentre attraverso una porta si accedeva a quella che era a tutti gli effetti la cucina: si trattava di un cucinotto, un ambiente di un metro per due attrezzato solamente con un lavello e un piano di cottura. In fondo a un breve corridoio si apriva l'unica camera dell'appartamento, spropositatamente grande in proporzione al resto dell'immobile, arredata con un letto matrimoniale ed un enorme armadio che oscurava la grande finestra".

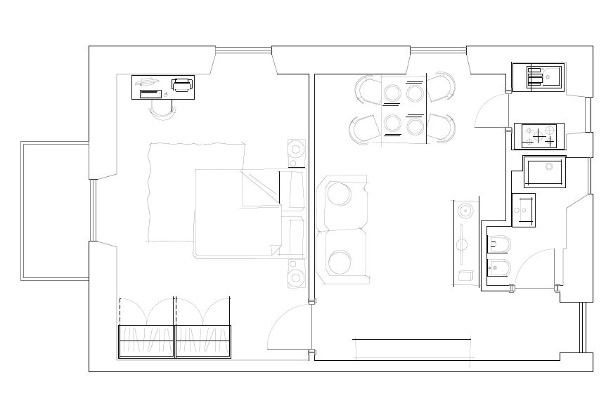
"Le necessità distributive che sono state espresse dalla coppia di acquirenti erano diametralmente opposte allo stato di fatto. La priorità era la cucina, che sarebbe diventata il vero punto focale del progetto. Nonostante le dimensioni ridotte al minimo, 41 mq, si è riusciti ad inserire un grande bagno con una parete che include una scarpiera, una camera da letto ridotta a dimensioni essenziali completa di grandi armadiature per lasciare posto all'enorme di cucina con penisola".
Cucina a L con elementi di stile industrial
In uno spazio abitativo voluto all'insegna del colore e all'enfasi di mobili e pezzi d'arredo used e retrĂ², l'architetto Ricci ha optato per un tipo di d'arredo cucina neutro sia nelle forme sia nel colore, bianco. La composizione bianca a L si snoda al di sotto della grande finestra e si completa con un piano colazione capace di fungere da elemento di confine tra lo spazio di preparazione dei cibi e il living, completato da sgabelli arancioni e fucsia di Kasanova. Il modello scelto è di Sira Cucine; pulito ed essenziale, ha come unico dettaglio in evidenza le sottili maniglie in acciaio in sintonia con il piano di lavoro. La parte superiore della cucina è libera: niente pensili, ma solo una cappa in acciaio a muro ed uno speciale parschizzi composto da piastrelline bianche stile metropolitana, glossy e diamantate, posate in modo sfalsato.

Spicca in modo deciso anche l'iconico frigo bombato color rosa di Smeg serie Fab, dal caratteristico stile anni '50. "La cucina è la regina incontrastata dell'ambiente, è visibile da ogni punto dell'appartamento. Ăˆ stata scelta una struttura volutamente semplice, lineare e monocromatica per non interferire con l'oggettistica che l'avrebbe poi completata. Elemento di spicco, voluto fortemente dal proprietario, amante e provetto cuoco, è il piano di lavoro in acciaio inox che conferisce una linearitĂ e brillantezza a tutto l'insieme. La scelta della cappa free standing e di non installare pensili laterali è dovuto alla necessitĂ di sfruttare al massima la luce proveniente dalla finestra angolare

"La tendenza dei proprietari ad collezionare oggetti vintage definiscono una coppia sempre pronta al cambiamento, con una mentalitĂ aperta alle differenze e volenterosa di scoprire nuovi orizzonti". Tanti i pezzi unici, quindi, tra cui anche il pannello dei gelati Algida anni '80 vicino al frigo rosa, il telefono Sip a cornetta. Colori e oggetti si armonizzano con la pavimentazione neutra e uniforme, in legno di rovere color miele.

SCHEDA PROGETTO
LOCALITA'
Roma
PROGETTO D’INTERIOR E D'ARREDO
Remodulare srl
TIPOLOGIA ABITAZIONE
appartamento
SUPERFICIE ABITATIVA TOTALE
41 mq
SUPERFICIE ZONA CUCINA circa
8 mq
TIPOLOGIA CUCINA
Semi aperta
ARREDO CUCINA
Sira Cucine - Frontali basi e colonne in laccato bianco - Piano di lavoro in acciaio inox spazzolato - Piano snack in laminato ad effetto quercia
ELETTRODOMESTICI
Piano cottura a gas e lavello: Franke - Frigorifero Smeg serie FAB color rosa - Forno e lavastoviglie: Beko Impastatrice: Bialetti
ARREDI E COMPLEMENTI CUCINA-LIVING
Poltrona viola anni ‘40 di Atmosphera, in velluto Cherry Calixte - Sgabelli colorati girevoli di Kasanova - Vecchia botte vino adibita a cantinetta e fatta a mano - Mobile bar di Maisons du Monde - Lampada da terra Hektar, di Ikea - Lampada a sospensione con tre diffusori Aggunaryd, di Ikea
PIANTA PROGETTO

PIANTA STATO DI FATTO

Immagini appartamento "prima" e durante i lavori



