"Prima dell’intervento l’appartamento presentava una planimetria molto rigida e longitudinale, tipica degli anni ’30: una sequenza di stanze distribuite in fila lungo un asse centrale. Questa configurazione penalizzava soprattutto la zona giorno e la cucina, che risultavano poco permeabili alla luce naturale, opache e compresse da controsoffitti ormai obsoleti". Così l'architetto Andrea Collodoro - contitolare dello studio Puccio Collodoro Architetti insieme a Gianluca Puccio - inizia il racconto del complesso intervento di ristrutturazione che ha coinvolto quella che sarebbe diventata la sua nuova abitazione, sita in un edificio nel centro storico di Palermo, a pochi passi dallo storico Teatro Politeama. Dopo il restauro degli esterni della palazzina - anch'esso eseguito su progetto dei due architetti - si è passati alla ristrutturazione dell'appartamento, uno spazio lungo e buio e privo di respiro. Il desiderio di Andrea Collodoro era farne una casa viva, aperta alla luce e ricca di atmosfera. Il progetto e l'intera operazione di rinnovamento dell'appartamento sono stati concepiti ed eseguiti in tandem, tra Andrea e Gianluca. "Tutti i nostri progetti li affrontiamo insieme, e così è stato anche per quello della mia casa", spiega Andrea Collodoro. "L’idea generale alla base del progetto è stata realizzare una casa ariosa, luminosa e contemporanea, senza però cancellarne la memoria storica". Che si ritrova soprattutto in cucina, espressa da elementi di recupero riutilizzati in forma artistica. "Lo stile complessivo è quello di una sofisticata contemporaneità, che non rinnega l’anima originaria dell’appartamento, ma la esalta attraverso un linguaggio basato su contrasti armonici: memoria/innovazione, caldo/freddo, naturale/tecnologico".

Gli inizi della rimessa a nuovo dell'appartamento non sono stati semplici, data l'antiquata tipologia distributiva. "La zona giorno era frammentata e i soffitti abbassati ne riducevano l’altezza e la percezione volumetrica", spiega Andrea Collodoro. "La zona della cucina/pranzo si trovava in continuità con questo assetto lineare e chiuso, senza la forza scenica né la fluidità che invece caratterizzano oggi l’ambiente".
Dal living alla cucina-pranzo
Dedicata al figlio Mattia, Casa Matì dell'architetto Collodoro è in perfetta coerenza con lo stile sobrio, elegante e leggero che contraddistingue i progetti firmati dallo Studio. Dalla cucina al soggiorno fino alle camere la materia è protagonista, ma senza ostentazione, perché tutto è giocato su tonalità neutre. "Appena varcata la soglia, si entra in un universo dove la funzionalità incontra l’emozione", continua Collodoro. "La zona living è il cuore della casa: si tratta di uno spazio a doppia altezza, inondato dalla luce zenitale proveniente dalle finestre sul tetto. In questo ambiente domina la scala in scultorea in metallo realizzata su disegno, che non è solo collegamento ma è anche elemento arredo e segno architettonico. L'ambiente è arricchito da un'armadiatura filo muro composta da una libreria e una porta a scomparsa integrata in legno di rovere naturale e da un camino centrale in marmorino. Pezzi d'arredo morbidi e accoglienti (come il divano Mags Sof di Hay) bilanciano la forza materica degli elementi architettonici".
"Oggi l'appartamento si presenta come un interno luminoso e coerente. Abbiamo studiato nei dettagli ogni elemento – dalla scala scultorea alla scelta dei materiali – con l'obiettivo di costruire un linguaggio raffinato e contemporaneo, senza perdere il legame con la memoria storica della casa".
Una nuova scenografia domestica
La zona giorno fluida scorre attraverso la porta semi trasparente a listelli che collega cucina-pranzo e living e si contraddistingue per il cambio di pavimentazione. Dal parquet in rovere a spina di pesce in rovere del living si passa così alla resina grigia dello spazio cucina fino al tappeto in cementine originali sotto il tavolo da pranzo monolitico, in resina bianca. "Le cementine recuperate stabiliscono un ponte con la storia della casa e con la tradizione siciliana, reinterpretata in chiave contemporanea", dice l'architetto. Estesa a tutta parete, l'armadiatura in legno di rovere della zona cucina riscalda l'ambiente realizzando un piccolo capolavoro di artigianato.
Nella nuova cucina-pranzo l'impianto d'arredo è sì scenografico, ma corrisponde anche ad una soluzione funzionale. "In sintesi, il living e la cucina sono pensati come un’unica scenografia domestica, dove la luce, i materiali e le proporzioni dialogano per restituire un ambiente raffinato, conviviale e senza tempo". L'isola è per così dire, il fulcro "materico" dell'arredo cucina: è realizzata in Laminam Bianco Assoluto, materiale ceramico in lastre ad elevata resistenza che riveste le fiancate e il piano di lavoro che sporge diventando zona colazione.

Di nuovo in Laminam, ma nella finitura Fokos Roccia, sono realizzati il top e lo schienale della nicchia per la zona lavaggio inserita nella armadiatura a parete, ovvero una composizione simmetrica costituita da colonne in laccato bianco e da pensili centrali in legno di rovere.

Grande enfasi è stata conferita all'area pranzo che fronteggia l'isola, anzitutto con la scelta di un grande tavolo con i bordi arrotondati creato su disegno e realizzato artigianalmente, con rivestimento in microresina bianca. Circondano le tavolo le sedute imbottite Tata Young di Pointhouse, abbinate agli sgabelli.

Accentuano l'importanza della zona dedicata alla convivialità le due grandi lampade a sospensione in vetro nero e Bohemia di Marset e le cementine di recupero incastonate nel pavimento in resina grigia, perfettamente in nuance con le strutture delle sedute.
Colore e fantasia connotano la zona notte di questa casa "emozionale": il blu e l'azzurro di cameretta e bagno aggiungono verve insieme all'intensa tonalità di rosso della camera padronale con letto imbottito Eden di Noctis, comodini Lirio di Hiro e lampade Bilboquet di Flos.
SCHEDA PROGETTO
LOCALITA'
Palermo
PROGETTO DI INTERIOR E D'ARREDO
Puccio Collodoro Architetti
TIPOLOGIA ABITAZIONE
Appartamento
SUPERFICIE ABITATIVA TOTALE
116 mq
SUPERFICIE ZONA CUCINA
25 mq circa
TIPOLOGIA CUCINA
Semi-aperta
ARREDO CUCINA
Su misura - Isola con frontali e top in Laminam Bianco Assoluto - Frontali basi, colonne e sopracolonne della armadiatura: laccato bianco - Pensili in legno di rovere naturale - Piano di lavoro e schienale nella nicchia in Laminam Fokos Pietra
ELETTRODOMESTICI
Frigocongelatore, forno e lavastoviglie: Whirpool - Piano a induzione con cappa integrata Nikola Tesla, di Elica
COMPLEMENTI ZONA CUCINA
Tavolo realizzato artigianalmente su disegno, con rivestimento in microresina - Sedie e sgabelli Tata Young di Pointhouse – Lampade a sospensione Bohemia di Marset
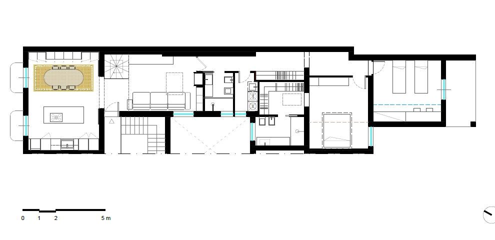
PIANTA PROGETTO




