Reinterpreta la tecnica millenaria dello shou sugi ban - anche detto yakisugi - per mimetizzarsi nel paesaggio: è l'architettura organica progettata dallo studio Edoardo Milesi & Archos che, grazie all'uso massivo del legno, definisce un nuovo modo di abitare la natura. Proprio per la sua attenzione all'ambiente, la casa è tra i finalisti del Wood Architecture Prize by Klimahouse 2026. Collocata sulle pendici delle colline bergamasche, la casa reinterpreta il rapporto tra costruito e natura scegliendo di relazionarsi, per morfologia, materiali e cromatismi, con l’area verde in cui si trova immersa, ignorando così il disomogeneo contesto residenziale circostante. Ce lo spiega bene la stessa progettista, l'architetto Giulia Milesi, contitolare dello Studio. "L’idea di partenza è stata quella di costruire una casa capace di stare in un paesaggio urbano di scarsa qualità senza omologarsi ad esso e senza imporsi, evitando contrasti forzati. Abbiamo scelto quindi di dialogare in silenzio con la natura circostante restituendo all’architettura il ruolo di componente partecipe e non di semplice oggetto inserito al suo interno".
Un concept di progetto di casa davvero eco, che stato studiato di pari passo con le esigenze della committenza, una famiglia giovane di cinque persone, con tre bambini piccoli. "La richiesta della committenza era semplice e, allo stesso tempo, molto chiara: vivere in un “nido” immerso nel verde, confortevole, essenziale, con un’attenzione concreta al budget. Si sono affidati completamente a noi, e questo ci ha permesso di lavorare con grande libertà, mantenendo sempre come obiettivo la qualità dell’abitare e il rapporto quotidiano con la natura", prosegue l'architetto Giulia Milesi.

"Abbiamo scelto quindi di dialogare in silenzio con la natura e il verde circostante, restituendo all’architettura il ruolo di componente partecipe e non di semplice oggetto inserito al suo interno. Il lotto si trova, infatti, in un contesto edificato negli anni ’80 molto eterogeneo, ma con una discreta componente di verde: proprio il rapporto con il giardino ha guidato le scelte formali e funzionali. Il terreno, con il suo andamento naturale, non è stato modificato; anzi, ha contribuito in modo determinante alla definizione della forma e dell’organizzazione della casa".
Una struttura tra tradizione e innovazione a secco
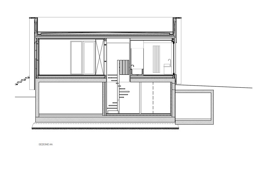
L’edificio si distingue anche per elementi costruttivi particolari, che marcano un confine ben definito tra terra e cielo. "Dal punto di vista costruttivo, il progetto si basa su una distinzione molto netta: le parti interrate sono realizzate in calcestruzzo a vista, in modo tradizionale, mentre tutto il volume fuori terra è costruito con una tecnologia a secco, prevalentemente in legno". Quindi, il basamento è in calcestruzzo armato, mentre la struttura portante, i tamponamenti e i tramezzi interni sono realizzati con una costruzione a secco, che garantisce flessibilità, efficienza e sostenibilità. La scelta di realizzare due volumi con materiali distinti ci ha permesso anche di ottenere ottime prestazioni dal punto di vista energetico e antisismico, ma anche di ridurre l’impatto del cantiere e i tempi di realizzazione. Le sistemazioni esterne e il verde, ad esempio, sono state realizzate in parallelo al montaggio della struttura".

"Per il rivestimento esterno abbiamo scelto il larice naturale trattato con la tecnica giapponese dello yakisugi: la bruciatura e l’olio di lino permettono di proteggere il legno in modo naturale, senza ricorrere a prodotti chimici, lasciando che il materiale invecchi e cambi nel tempo. È una scelta che riflette il nostro modo di intendere l’architettura: materiali autentici, lasciati liberi di dialogare con il paesaggio"
Esterni e interni, parti di unico progetto connesso alla natura
"Abbiamo lavorato molto anche sul comfort complessivo, progettando insieme edificio e spazi esterni: giardino, pavimentazioni, illuminazione notturna e recinzioni sono concepiti come parti di un unico progetto. La cura del dettaglio serve anche a controllare i rapporti visivi con il contesto più denso che circonda il lotto, garantendo privacy senza rinunciare alla luce e alle relazioni con l’esterno. Anche l’orientamento dell’edificio è stato determinante: abbiamo seguito il percorso del sole per assicurare a tutti gli ambienti una buona illuminazione naturale durante la giornata.
Scelte green e funzioni in armonia anche per gli interni
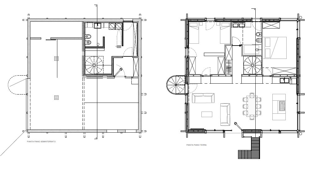
La stessa volontà di impiegare elementi, materiali, soluzioni, impianti e tecniche costruttive eco-sostenibili utilizzati per gli esterni e in generale per la struttura edilizia, si ritrova anche negli interni e nella cucina. Dal volume in calcestruzzo armato del piano semi-ninterrato si passa, attraverso una scala in ferro traforato, al livello principale. "Il passaggio tra il livello inferiore e il piano abitato è segnato da un cambio di materiale", continua l'architetto Milesi. "Il calcestruzzo a vista, colorato in pasta, consente al verde di avvicinarsi senza timori, dando all’edificio un’immagine quasi organica, come se fosse un tronco che emerge dal terreno".
Il piano abitativo è strutturato con camere, bagni zona giorno cucina a isola. Tutto di connota fortemente per l'effetto cocoon dato da rivestimenti, pareti, armadiature e controsoffitti in legno di betulla, abbinati ai pavimenti in parquet. Una scelta decisa, che rappresenta il tratto stilistico distintivo sia dello spazio giorno sia delle camere. "Il legno di betulla è il filo conduttore: lo abbiamo utilizzato per i controsoffitti e per tutti gli arredi su misura. È un materiale chiaro, luminoso, accogliente. Un grande arredo interparete attraversa tutta la casa e organizza gli spazi".
Il cuore della casa: comfort ambientale e traspirabilità
Nell'open space vetrato della cucina-living, le funzioni convivono con eleganza: armadio interparete, zona pranzo e cucina "danzano" in sintonia, accomunati da un design essenziale e dalle superfici lignee. "Qui abbiamo lavorato molto sul comfort ambientale. La traspirabilità e la facilità di manutenzione erano aspetti fondamentali: per questo le contropareti sono realizzate con pannelli in canapa rifiniti con un intonaco a base di calce, schiacciato a spatola. Un grande arredo interparete attraversa tutta la casa e organizza gli spazi, integrando contenitori, passaggi e anche l’area di lavaggio della cucina", continua la progettista.

" La cucina è pensata per essere vissuta intensamente: grandi piani di lavoro, fornelli generosi, contenitori per libri e utensili. Qui la funzione ha guidato ogni scelta, senza sovrastrutture estetiche, rispecchiando la passione dei committenti per la cucina e il cibo fatto in casa. La zona cottura è nella isola centrale in betulla e acciaio grezzo". Complemento di valore, la scaffalatura in acciaio dedicata ai libri di cucina, un volume annesso all'isola che si innalza e si incastra nel blocco, schermando l'area cottura sul retro. Altrettanto originale è la cappa sospesa rivestita in lamiera metallica trattata con una speciale finitura ad effetto rame.

"Anche nel living e nella cucina i materiali sono lasciati il più possibile al naturale o trattati con oli neutri; la luce che entra dalle grandi aperture ha il compito di trasformarli nel tempo, accompagnandone la naturale ossidazione. È un modo per rendere visibile il passare delle stagioni anche all’interno della casa, rafforzando quel legame continuo tra spazio abitato e natura che è alla base dell’intero progetto".
SCHEDA PROGETTO
LOCALITÀ
Sorisole (BG)
PROGETTO D’INTERIOR E D'ARREDO
Edoardo Milesi & Archos
TIPOLOGIA ABITAZIONE
Unità monofamiliare indipendente
SUPERFICIE ABITATIVA
300 mq: piano terra: 100 mq; piano Interrato lavanderia e bagno di cortesia: 100 mq; terrazza solarium: 100 mq
ZONA GIORNO CON CUCINA E LIVING
50 mq
TIPOLOGIA CUCINA
Open space
ARREDO CUCINA
Realizzata totalmente su misura e su disegno dello studio Edoardo Milesi & Archos - Frontali di basi, pensili, colonne e isola: legno di betulla - Top delle basi e paraschizzi: acciaio grezzo - Isola con top in betulla e in acciaio grezzo
Cappa personalizzata con rivestimento in lamiera metallica e finitura effetto rame
ELETTRODOMESTICI
Piano cottura a induzione e forno: Smeg
COMPLEMENTI E ARREDI CUCINA-LIVING
Tavolo da pranzo in legno realizzato su misura - Parete attrezzata: sistema contenitore in legno di betulla realizzato su misura, con camino integrato - Divano: Ikea - Illuminazione: sistema a faretti tecnici Egoluce
PIANTE - SEMINTERRATO E PIANO TERRA

SEZIONE




