Un filo rosso lega gli Stati Uniti degli anni ’70 alla Toscana: è la storia di una giovane giornalista americana che, mossa dalla passione per l'arte culinaria italiana, decide di trasferirsi e stabilirsi nel nostro Paese. Obiettivo, riuscire ad apprendere i segreti della tradizione regionale. Nel corso degli anni passati in Italia la giornalista è divenuta un'autorità riconosciuta nel settore, ha saputo intrecciare una rete di relazioni con chef, agricoltori e vignaioli in Toscana. e anche oltre e, di recente, ha scelto la sua nuova dimora, a Firenze, tra Porta Romana e l’Oltrarno fiorentino. Si tratta di un appartamento di 250 mq situato al piano nobile di un immobile risalente agli anni '30, che è stato riprogettato e ristrutturato dagli architetti André Benaim e Camilla Santoni _ Studio Benaim, e che si incentra su una zona giorno confortevole, dove i mobili di design su misura si mixano con eleganza agli antichi dettagli.

L’intervento di ristrutturazione della nuova casa è stato di tipo globale; la distribuzione degli spazi è stata infatti rivoluzionata per ottimizzare la vivibilità complessiva. In questo contesto, la cucina occupa un ambito contenuto, dalle dimensioni compatte, ma ottimizzato con precisione sartoriale, in cui la preparazione dei cibi diventa un'esperienza piacevole; cuore e simbolo di questa efficienza è il blocco cottura Ilve, che eleva lo spazio a laboratorio professionale domestico. La zona giorno, in cui inserisce anche la cucina, è stata ricavata sul versante interno, affacciato sul giardino, una rarità per le case di Firenze, che ora ospita un piccolo orto di erbe aromatiche garantendo ai proprietari il contatto diretto con la materia prima alla base della loro filosofia di vita.
Pur avendo effettuato un intervento globale, gli architetti hanno scelto di valorizzare e preservare le peculiarità dell'appartamento a partire dalla conservazione dagli originali pavimenti in graniglia che si connotano per le eleganti decorazioni, diverse per ognuna delle precedenti stanze; infissi e porte interne sono stati restaurati magistralmente da Falegnameria Ferruzzi.

Una mini cucina ergonomica e connessa al living
Incucina si entra attraverso il passaggio sul disimpegno centrale della casa, un ampio spazio illuminato dalle finestre affacciate sul giardino interno dove, da un lato si aprono altri 2 varchi verso gli spazi dell'area giorno, ovvero verso la zona relax e poi verso l'area pranzo; all'opposto, e sugli altri due lati del disimpegno, si aprono sia la porta d'ingresso alla casa sia le porte della zona notte. Per lazona giorno, la trasformazione è partita dall'abbattimento delle vecchie divisioni murarie che hanno lasciato il posto a grandi aperture interne; gli ambienti della zona notte e due studi sono stati invece ricavati sul versante della casa esposto su strada. Grazie all'eliminazione della partizioni murarie, gli architetti hanno potuto creare uno spazio giorno esteso, dove zona relax, area pranzo e cucina in comunicazione tra loro definiscono un unico ambiente dall'atmosfera accogliente.
Per definire uno spazio cucina raccolto e compatto, ma connesso al living, gli architetti hanno optato per una soluzione ad alto valore funzionale ed estetico, pensata per favorire un'interazione visiva costante: la realizzazione una finestra interna tra cucina e la zona pranzo lasciando peròun muretto divisorio basso, completato da un piano in granito. “Da una parte abbiamo abbattuto una parete che divideva gli ambienti che oggi sono destinati al divano e al tavolo da pranzo, così da formareun unico e ampio spazio conviviale", spiegano i progettisti. "Dall’altra abbiamo aperto una sorta di asola tra la cucina e il resto del living, inserendo una mensola passante in granitoche agisce anche da piano di appoggio".

"Ne risulta una cucina di dimensioni contenute - continuano gli architetti - ma ben organizzata, dove ogni centimetro è stato sfruttato al massimo. L’immagine complessiva è pulita, essenziale e leggera: la scelta di utilizzare mensole a giorno al posto dei pensili tradizionali contribuisce infatti a rendere l’ambiente più arioso e minimal, alleggerendo visivamente la composizione e valorizzando la continuità con la zona pranzo".

“Microcosmo” luminoso di 10 mq, la cucina è quindi un piccolo gioiello di funzionalità, dove ogni elemento d'arredo risponde anche ai fondamentali requisisti di ergonomici. L'arredo della cucina si sviluppa infatti ad U assecondando perfettamente il principio del "triangolo di lavoro", regola fondamentale della progettazione e dell'ergonomia in cucina volta ad ottimizzare i movimenti tra le tre aree operative principali: lavaggio, cottura e conservazione.
Per la cottura è stato scelto il blocco cucina Ilve da 90 cm della gamma Professional Plus con due forni (uno da 60 cm, l’altro da 30 cm), per cucinare per più persone. "Il granito del piano passante unifica tutti i piani di lavoro interni alla cucina; le pareti, le mensole e i pensili sono in legno verniciato bianco. All'unicità di questo spazio contribuiscono le collezioni esposte di stoviglie, pentole, padelle e altri accessori raccolti nel tempo dalla proprietaria a testimonianza della sua passione per il cibo e il mangiar bene. Non mancano, infine, gli accorgimenti “furbi” e sorprendenti, come lo zoccolino ligneo concepito come un ulteriore volume contenitore"

"Per quanto riguarda la disposizione degli elettrodomestici, la committenza aveva idee molto chiare, maturate sulla base delle proprie abitudini consolidate nel tempo; erano consapevoli sia delle caratteristiche degli elettrodomestici richiesti sia della quantità e tipologia di stoviglie e utensili da contenere. Questo ha permesso di definire con estrema precisione le dimensioni di ogni cassetto, sportello e ripiano, calibrando lo spazio in modo quasi sartoriale", spiegano gli architetti, e concludono: "la familiarità con i movimenti quotidiani e il coordinamento tra le diverse attività in cucina si sono rivelati elementi centrali del progetto. In tal senso, il nostro ruolo è stato quello di tradurre fedelmente un’organizzazione già collaudata in una soluzione coerente dal punto di vista architettonico e formale, valorizzando al massimo uno spazio di dimensioni contenute".
SCHEDA PROGETTO
LOCALITA'
Firenze
PROGETTO D’INTERIOR E D'ARREDO
Studio Benaim _ André Benaim, Camilla Santoni
TIPOLOGIA ABITAZIONE
Appartamento
SUPERFICIE ABITATIVA TOTALE
200 mq
SUPERFICIE ZONA CUCINA
8,50 mq
TIPOLOGIA CUCINA
Comunicante con la zona pranzo
ARREDO CUCINA
Realizzato su misura da falegnameria Wood Arredamenti - Basi con ante lisce in laccato bianco RAL 9010, dotate di apertura con maniglia a gola - Cassetti con strutture interne in betulla - Mensole laccate color bianco RAL 9010, complete di staffe a scomparsa - Piani e alzatine in granito "sale-pepe"
ELETTRODOMESTICI
Blocco cottura in acciaio di Ilve, da 90 cm - Frigo: Haier - Lavastoviglie a scomparsa: Siemens - Tritarifiuti Insinkerator – Depuratore acqua Grohe Blue Home
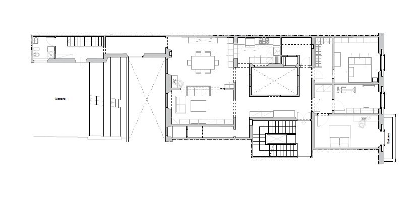
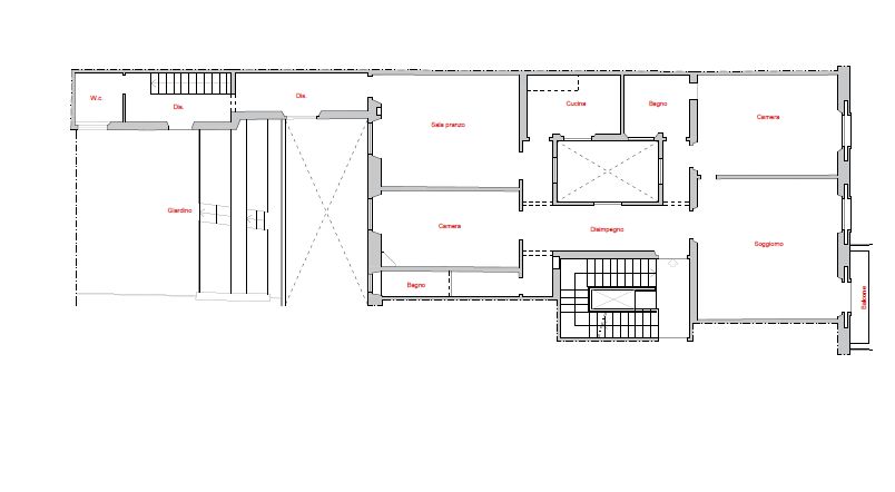
PIANTA PROGETTO

PIANTA STATO DI FATTO




