Un ristorante pensato come un set fotografico, in cui la luce mette in risalto il lavoro degli chef nella cucina a vista che, così, diventa scenografia e palcoscenico: è Scatto, degli chef Christian e Manuel Costardi (Costardi Bros), locale contemporaneo che si colloca nel museo Gallerie d’Italia dedicato all’arte fotografica, a Torino, e che è stato concepito con l'idea di valorizzare l’arte culinaria ispirandosi alla fotografia come linguaggio allestitivo e architettonico. La realizzazione del ristorante rientra nell'intervento globale di recupero firmato da Michele De Lucchi – AMDL Circle, che ha trasformato gli spazi dello storico Palazzo Turinetti dando vita alla sede torinese del museo Gallerie d’Italia, struttura sviluppata su cinque piani dedicati principalmente alla fotografia, con una selezione di opere del barocco piemontese. Il progetto d'interior e d'arredo del ristorante Scatto è invece firmato dallo studio di architettura Lamatilde. Per entrare nel merito del concept di un locale così particolare, abbiamo sentito il designer Marco Ruffino, di studio Lamatilde.

"Il progetto nasce sia dall'analisi del contesto in cui siamo andati a lavorare e dalla volontà di esaltarlo, sia, naturalmente, in base alle richieste specifiche della committenza (ovvero Intesa Sanpaolo insieme ai Costardi Bros)", spiega Marco Ruffino. Il ristorante si apre gli ospiti con una zona accoglienza allestita con un piccolo desk verticale centrale e con una parete specchiata anticata con scaffali costituita da listelli verticali sui cui si innestano lame di acciaio, che espone i prodotti gastronomici in vendita; la speciale lavorazione anticata degli specchi simula la grana delle pellicole fotografiche, portando negli interni del ristorante un ulteriore riferimento materico a quest'arte.
"A Palazzo Turinetti, gli chef Christian e Manuel Costardi (Costardi Bros) offrono una doppia esperienza: la gastronomia contemporanea con il ristorante, Scatto, e il bistrot Caffè San Carlo, inserito nelle raffinate sale ottocentesche del palazzo", dice Ruffino. "Entrando nello specifico, il ristorante Scatto si caratterizza come spazio contemporaneo che omaggia e valorizza l’arte culinaria ispirandosi alla fotografia come linguaggio architettonico e allestitivo".
La cucina scenografica pensata come una sala posa
Mette in scena l'arte culinaria la cucina a vista, enfatizzata dall'acciaio e dai faretti che puntano le luci sulle superfici riflettenti e sullo "spettacolo" degli chef mentre cucinano.

"Lo spazio del ristorante è organizzato di modo da offrire diverse esperienze di fruizione, a iniziare dallo chef's table, la postazione che meglio permette la fruizione dello spettacolo che avviene in cucina, per arrivare fino all'area privé e alla grande sala composta in maniera più tradizionale, ma con attenzione alle esigenze di flessibilità e alla convivialità degli ospiti. Qui spicca il grande tavolo, una soluzione creata con tavoli componibili che risalta rispetto alla linearità degli altri arredi".

La più evidente tra le esperienze di fruizione che i progettisti hanno voluto assegnare al ristorante è stata, quindi, rendere protagonista la preparazione dei cibi ponendo letteralmente in luce la cucina e completandola con un lungo chef'stable, da cui gli ospiti possono osservare direttamente "la scena" degli chef all'opera, visibili anche dai tavoli nella sala.Lo chef's table è realizzato con piano in legno di noce canaletto e rivestimento inferiore in marmo Emperador, due finiture in continuità materica con il bancone del bistrot Caffè San Carlo.

"Così come la fotografia evidenzia ed esalta il soggetto che ritrae, la cucina con chef table, elemento di punta del progetto, è caratterizzata da un volume architettonico - continua Ruffino - in cui pannelli in acciaio convergenti creano una prospettiva accelerata che orienta lo sguardo verso lo "spettacolo" della preparazione e mette in risalto i suoi protagonisti che rendono vivi questi spazi: il cibo d’eccellenza e le persone".
"Nel progetto del ristorante, i materiali sono funzionali ad esaltare i concetti che vogliamo veicolare", prosegue Ruffino. "Il materiale principale della cucina è l'acciaio, che gioca con la luce rendendo l'area la protagonista assoluta dello spazio".

Una finestra privilegiata
Sulla sinistra della cucina con chef's table, si apre l'elegante privè con tavolo rotondo, dove gli ospiti possono vedere, attraverso la finestra, la scenografia dello spazio dedicato alla preparazione e gli chef in azione. "Ideata come postazione di consumazione più intima, il privè mantiene - rispetto agli altri spazi del locale - uno sguardo diretto sulla cucina".

Valorizza la zona del privè l'imponente lampadario 2097/30di Flos firmato da Gino Sarfatti, che richiama il lampadario del Caffè San Carlo. D'importante impatto visivo, e pensata come la quinta di una ulteriore scenografia che anima il locale, è anche la parete continua di cantinette a colonna dedicate ai vini e prodotte da Ciam.
SCHEDA PROGETTO
LOCALITA'
Torino - Museo fotografico Gallerie d'Italia/Palazzo Turinetti
PROGETTO ARCHITETTONICO GLOBALE "GALLERIE D’ITALIA"
AMDL Circle e Michele De Lucchi
RISTORANTE "SCATTO"
SUPERFICIE
240 mq Lamatilde
PROGETTO D'INTERNI E DIREZIONE ARTISTICA
Lamatilde
DIREZIONE LAVORI
Recchi Engeneering
PROGETTO ILLUMINOTECNICO
Ferrara Palladino e Associati
ARREDO CUCINA
Cucina realizzata da Electrolux Professional - Elettrodomestici professionali di Electrolux Professional - Parete di colonne-cantina per vini di Ciam
SALA RISTORANTE _ ARREDI PRINCIPALI
Chef's table con piano in legno di noce canaletto e marmo Emperador - Poltroncine e sgabelli Lea, di Midj - Tavoli su disegno - Illuminazione scenografica: lampade Pendagli, di Vesoi - Illuminazione tecnica, su binario: Erco - Illuminazione scenografica privè: lampadario 2097/30, di Flos, disegnato da Gino Sarfatti - Specchi di Labanto - Allestimenti: Elements by Cavallaro
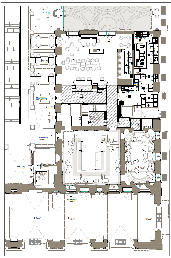
PIANTA PROGETTO

PIANTA PROGETTO RISTORANTE "SCATTO" + BISTROT




