Nel cuore del quartiere San Lorenzo, a Napoli, nasce Casa Iolascon, una residenza su due livelli di 150 mq ristrutturata dallo studio Labia Design, un raffinato progetto in equilibrio tra l’anima antica dell’edificio e un linguaggio architettonico contemporaneo. Tra le firme prestigiose che definiscono l'habitat - tra cui Cassina, Flos, Poliform e Rimadesio - spicca il ruolo centrale dello spazio cucina arredato da Arrital con la cucina Ak_Project (design Franco Driusso). Che è qui non è un semplice arredo, ma fulcro di una scenografia domestica che si sdoppia in due ambiti: isola cottura e wet kitchen semi-nascosta sotto le arcate. "Il progetto di questa residenza ascolta e interpreta i desideri dei proprietari, restituendo uno spazio che riflette non solo esigenze pratiche, ma soprattutto identità, storie e radici", ci ha detto l'architetto Rocco Ripoli, contitolare dello studio Labia Design, che ci ha raccontato la trasformazione della casa e in particolare della zona giorno e della cucina, fortemente connotata da due arcate e dalla scala che porta al soppalco.

"Prima dell’intervento, l’appartamento presentava una distribuzione frammentata e un linguaggio eterogeneo, privo di coerenza con il carattere storico dell’edificio. La sfida è stata restituire ordine e continuità allo spazio, lavorando sulla chiarezza dei percorsi e sulla definizione di un’atmosfera domestica accogliente, ma contemporanea. Nel progetto sono stati completamente ripensati i volumi interni, integrando elementi su misura e soluzioni materiche coerenti".
Lo spazio a doppia altezza con isola cottura e wet kitchen
L'attenzione del progetto si focalizza sullo spazio più vistoso e scenico: l'ambiente della cucina-pranzo a doppia altezza. Qui la scala con armadio integrato verde acqua conduce al livello superiore che si affaccia con una balconata sul grande ambiente, caratterizzato dalle magnifiche e antiche travi in legno del soffitto spiovente. "Il concept di quest'area della casa si basa su un’idea di habitat fluido che si concretizza in una continuità spaziale fatta di leggerezza, luce e materia. La cucina non è concepita come un volume indipendente, ma come parte del soggiorno: i due ambienti dialogano grazie a una palette coerente di materiali e colori, dove il legno di rovere e le tonalità di verde creano un filo visivo comune".

L'ariosità e la "leggerezza" visiva dello spazio cucina-pranzo si deve sia all'impiego di nuance chiare ed eleganti sia alla scelta di adottare solamente un'isola dedicata alla cottura, e un tavolo da pranzo, e di nascondere contenimento e area operativa dentro la nicchia definita dalle due arcate, che funge da wet kitchen. Materiali dalle tonalità soft come il Laminam Bianco Calce e il rovere naturale sono rispettivamente adottati il top e le ante dell'isola Ak_Project di Arrital, ripresi dai mobili della wet kitchen. "La nuova isola in rovere dialoga con i soffitti restaurati e le cromie verde mare, restituendo profondità e luce. Nell’area giorno, il lavoro ha mirato a creare una sensazione di armonia e respiro, giocando sui contrasti calibrati tra il tono caldo del legno e le nuance più fredde di pareti e arredi".

Appartata e super funzionale, la cucina di servizio è dedicata alla preparazione dei cibi, che in tal modo si cela lasciando in ordine l'isola. In questo mini spazio, l'arredo - sempre realizzato da Arrital con il sistema Ak_Project - è costituito da basi in legno laccato opaco abbinate alle colonne, pensili in rovere naturale e top con vasca.
"La scala, con la sua doppia funzione contenitiva e scenografica, diventa fulcro visivo e funzionale e un dispositivo architettonico che unisce piuttosto che dividere: scandisce lo spazio, ma ne preserva la percezione unitaria. In questo modo si configura un ambiente unico e permeabile, dove cucinare, lavorare o accogliere si fondono naturalmente nella quotidianità domestica".
"La palette cromatica rappresenta il cuore poetico del progetto: il verde mare richiama la luce mediterranea e il paesaggio napoletano, mentre le tonalità blu e rovere dialogano con essa in un contrappunto equilibrato. Le nuance sono state scelte per accentuare il senso di profondità e continuità tra i diversi ambienti, aggiungendo al racconto domestico una dimensione emotiva e identitaria".
SCHEDA PROGETTO
LOCALITA'
Napoli
PROGETTO D’INTERIOR E D'ARREDO
Studio Labia Design
TIPOLOGIA ABITAZIONE
appartamento su due livelli
SUPERFICIE ABITATIVA TOTALE
Mq 150 m2
SUPERFICIE AREA CUCINA-PRANZO
Mq 30 mq
TIPOLOGIA CUCINA
Aperta + wet kitchen semichiusa
ARREDO CUCINA
Arrital, sistema Ak_Project - Isola: ante in rovere naturale e top con vasca integrata in Laminam Bianco Calce - Wet Kitchen: basi in laccato Sand Mandorla; top con vasca integrata in Laminam Bianco Calce; pensili in rovere naturale; colonne in laccato opaco
ELETTTRODOMESTICI
Piano cottura e forno e microonde: Neff - lavastoviglie: Miele
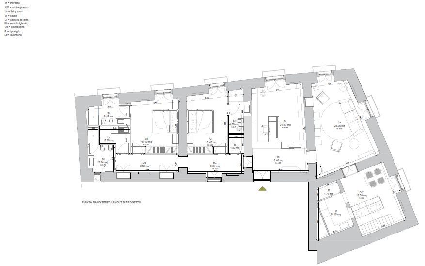
PIANTA PROGETTO

PIANTA _ DETTAGLIO ZONA CUCINA-PRANZO, LIVING E STUDIO

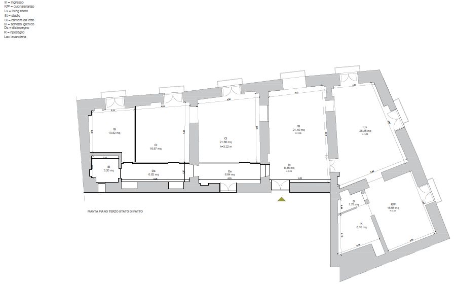
PIANTA STATO DI FATTO




