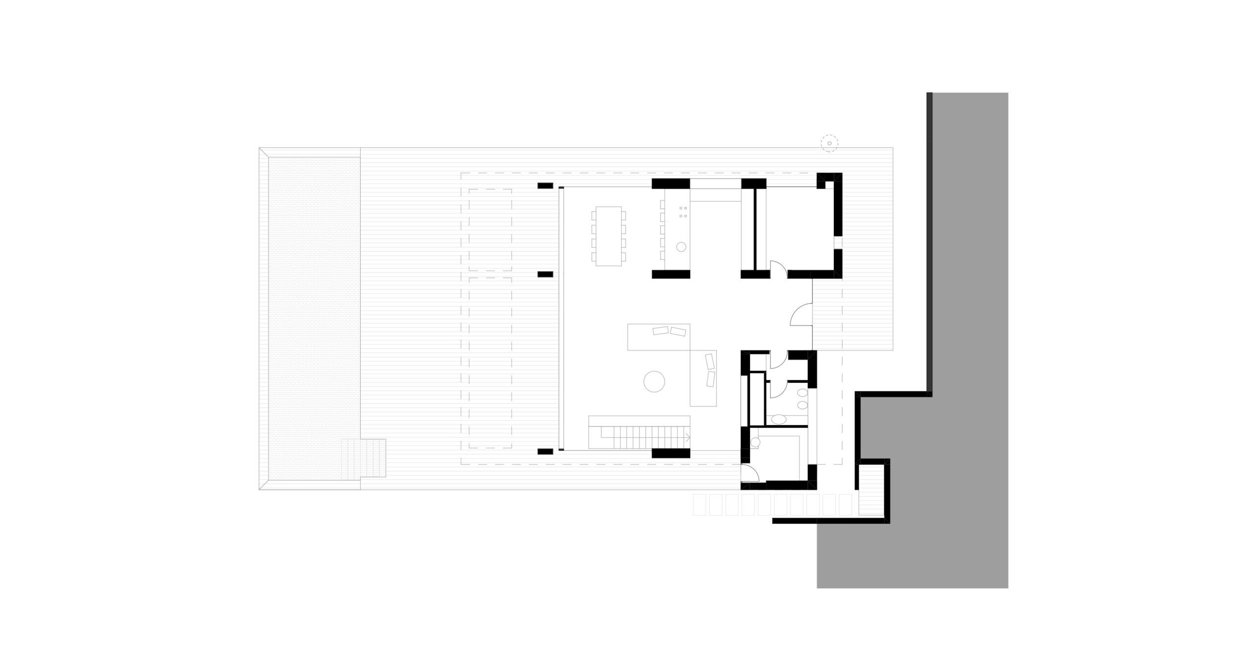
"Si getta come un podio" verso il lago Maggiore la villa adagiata su una collina a Laveno (VA), da cui la vista si allunga quasi all’infinito, verso la catena del Mottarone e della val d’Ossola. Questo paesaggio di grande suggestione rappresenta, in realtà, “il cuore del progetto dell'edificio, attorno a cui tutto è stato organizzato”, dice l’architetto Mauro Rivolta, titolare dello Studio EcoArch e autore del concept della magnifica villa. Una visione progettuale, quindi, che pone in primo piano l'ambiente naturale “trascinandolo” addirittura dentro la casa stessa, per creare un unicum in cui i confini si fondono tra loro. In questo edificio, tale concetto viene espresso nel livello superiore che corrisponde alla zona giorno, dove i diaframmi mobili in vetro che sostituiscono i muri perimetrali lasciano fluire il paesaggio dentro l'open space con cucina, zona pranzo e living, facendolo diventare prolungamento naturale del grande patio. Una vera e completa continuità interno/esterno, quindi, data anche dalla scelta di impiegare, per i due ambiti, la stessa identica pavimentazione, che uniforma così spazio giorno e terrazza trasformando l'intero livello in un unico belvedere aperto sull'infinito e a contatto con la natura.
Osmosi con la natura
L'intero progetto nasce anzitutto dalla personale visione dell'architetto riguardo al rapporto interno/esterno in generale che qui corrisponde al rapporto tra cucina-living e paesaggio. "Nel nostro territorio, abbiamo spesso la fortuna di progettare abitazioni inserite in contesti di particolare pregio paesaggistico", continua Mauro Rivolta. "Utilizzare le viste migliori all’interno del disegno è uno dei punti principali della nostra opera, anzi direi che è uno degli ingredienti più importanti; cucina e living, vero cuore della casa, non possono che avere l’attenzione migliore". Passando da un'idea generale di fare architettura ad una più specifica, ovvero a quella riferita al progetto di questa villa, si deve partire quindi dalla sua collocazione a contatto con la natura. "La casa si trova sulla sponda lombarda del lago Maggiore, in un punto in cui il versante - fortemente inclinato - guarda a ovest, sul limitare di un’area boschiva verso monte e con un intorno costituito da un tessuto residenziale diffuso", spiega l'architetto Rivolta.
"L’idea base del progetto è di un un volume compatto completamente rivestito in gres che contiene la zona notte e intagliato da logge e finestre ben calibrate, a cui si sovrappone il volume leggero e trasparente della zona giorno. L’asse principale della casa è quello di massima pendenza verso la vista, verso il tramonto e quindi, se si eccettuano le camere ospiti orientate a sud, tutti gli ambienti di abitazione sono orientati in quella direzione".
Pareti in vetro scorrevoli per creare continuità

Il volume della zona giorno è stato così ideato come un parallelepipedo aggettante delimitato da pareti apribili in vetro e collegato in totale continuità con la terrazza-belvedere con vista verso il lago e verso l'infinito, che accoglie la piscina posta al limite estremo. "L’area living e la zona cucina sono nella parte più preziosa della casa, circondate da vetrate completamente apribili in modo da connettere intimamente gli interni con la speciale bellezza del paesaggio lacustre. Aprendo le vetrate scorrevoli si ottiene un effetto di soggiorno e cucina all’aperto, effetto che spesso si associa all’architettura mediterranea più che a quella prealpina. Abbiamo organizzato così la parte “pubblica” della casa, ovvero il belvedere, con piscina, soggiorno, pranzo e cucina nella posizione più spettacolare, al piano superiore, da cui si gode la vista con la massima apertura sul lago Maggiore; la piscina a filo sfrutta il dislivello esistente in modo da essere incassata totalmente e nascosta alla vista".
"Al piano inferiore della si scende con una scala interna intagliata nella pianta; qui troviamo le due camere ospiti con il bagno e, ad ovest, la sezione padronale con 3 camere e 2 bagni.
Come all'aperto

Rientra nell'ispirazione del progetto l'idea di una cucina che restituisse l'idea di essere esterna. "Come detto, tutto il concept della casa ruota attorno al principio di un potente basamento per la zona notte, mentre la zona giorno quasi tutta vetrata si appoggia con leggerezza sul basamento. L’aspetto centrale del progetto del livello principale è stato esaltare la sequenza cucina/pranzo/belvedere/piscina/paesaggio. Aprendo le vetrate scorrevoli poi ci si trova anche fisicamente immersi nel paesaggio". Una continuità assicurata anche dalle stesse lastre in gres da 120 x 60 di Flaviker che pavimentano sia la terrazza inglobando la piscina sia l'interno, scelte nella stessa tonalità neutra.

Proprio in prossimità del confine segnato dalle pareti trasparenti scorrevoli si colloca la zona pranzo, che si interpone così tra terrazza e lo spazio cucina delimitato dal portale e dal banco-colazione. Il colore nero della struttura e del piano in marmo del tavolo di Poliform stacca nettamente sull'insieme bianco candido e contrasta con l'apertura laterale sul bosco.

"I colori e i materiali più importanti del progetto sono senza dubbio quelli del paesaggio: il blu-grigio del lago, il verde della natura, l’azzurro cielo", continua l'architetto. "Per questo, di comune accordo con la proprietà, per l'arredo della cucina abbiamo scelto di utilizzare colori desaturati e sobri: il bianco, il sabbia, il grigio antracite per i serramenti. Pochi materiali, pochissimi colori... per fare vibrare al massimo il paesaggio".

Raccolto e al contempo aperto sul tutto, lo spazio della cucina si connota per portale che incornicia e al contempo separa l'area pranzo dalla cucina. La vera e propria zona operativa dedicata alla preparazione è delimitata dal banco-colazione con lavello e piano cottura a induzione. Al di là di questo, la zona operativa della cucina, le cui superfici completamente lisce e chiare si mimetizzano con le pareti. Il modello scelto è Skill di Modulnova, con ante e piani di lavoro in Fenix Bianco Kos.

L'open space della zona giorno comprende la zona relax con il divano ad angolo, mentre - attraverso la scala - si raggiungono le camere del livello inferiore. L’edificio è caratterizzato da prestazioni energetiche elevate e da un’impiantistica avanzata; nonostante l’articolazione complessa dei volumi, ogni ponte termico è stato eliminato o corretto
SCHEDA PROGETTO
LOCALITÀ
Laveno (VA)
PROGETTO D’INTERIOR E D'ARREDO
Studio EcoArch
TIPOLOGIA ABITAZIONE
Villa
SUPERFICIE TOTALE ABITAZIONE
350 mq
SUPERFICIE CUCINA/LIVING
106 mq
SUPERFICIE ZONA CUCINA
20 mq
ARREDO CUCINA
Modulnova, modello Skill - Ante e top in Fenix Bianco Kos - Gole e zoccolo bianchi - Struttura interna Grigio Texture
ELETTRODOMESTICI
Frigo e lavastoviglie: Whirlpool - Lavello: Franke - Piano cottura e cappa: Falmec
ARREDI ZONA GIORNO
Tavolo da pranzo: Concorde di Poliform con piano in marmo - Lampade a sospensione: Aplomb, di Foscarini - Sgabelli: Lem di La Palma - Divano e pouf: Artnova
PIANTE


SEZIONE




