All’interno di un palazzo storico nel cuore di Torino, in Piazza Savoia, con il B&B ristrutturato dallo studio Archventil il concetto di ospitalità coincide con l'idea di rifugio urbano di lusso, ma in un formato super compatto. Si tratta infatti di un mini spazio rinato a nuova vita, che ha mutato la sua destinazione d'uso originaria passando da residenza a struttura ricettiva. Una una piccola struttura ricettiva, che rispecchia un'idea di accoglienza e di ospitalità decisamente attuale e contemporanea. "Prima dell’intervento l’appartamento di Torino si presentava come un unico ambiente, poiché era un monolocale. Il nostro obiettivo era trasformare questo spazio di soli 33 mq in un B&B moderno, dotato di tutti i comfort per l’accoglienza turistica, senza perdere il fascino originario della struttura d’epoca", ci ha raccontato Elena Tomlenova, founder & creative director dello studio d'architettura milanese. Il B&B ospita così i suoi clienti in un'atmosfera sofisticata e riposante, resa preziosa da elementi decorativi d'interior d'epoca e dalle tonalità neutre che vanno dall'avorio al color tortora. Inclusa e quasi mimetizzata nel tutto, la cucina creata custom da Arredo3, che sembra più un'elegante boiserie contenitiva che una postazione funzionale, grazie ad uno stile essenziale e chic. Per la cucina così come per l'arredo del B&B si è optato per una palette chiara e neutra da cui si stacca il nero di complementi e accessori di design come la lampada da terra Ozz Floor di Miniforms, il rubinetto miscelatore della cucina e i tavolini. "Oggi l’appartamento è un microcosmo armonico, in cui ogni elemento – dai colori alla funzionalità degli arredi – contribuisce a dare un senso di ordine, comfort e intimità. Abbiamo inoltre valorizzato le cornici a soffitto e ripreso la boiserie su alcune pareti mantenendo così lo stile classico che caratterizza l'edificio."

Abbiamo chiesto anzitutto ad Elena Tomlenova quali siano state le richieste fatte dal cliente per trasformare la casa in una struttura ricettiva. "Il concept nasce dal desiderio del cliente di unire comfort contemporaneo e identità storica. Abbiamo voluto creare un luogo accogliente e luminoso, che trasmettesse equilibrio tra funzionalità e stile, pensato per chi cerca un’esperienza di soggiorno curata nei dettagli. Il fil rouge è la matericità naturale: abbiamo scelto materiali sostenibili e resistenti, come il linoleum Forbo per i pavimenti – realizzato con materiali riciclati – e pannelli in compensato marino per alcune pareti, per garantire durata e un’estetica calda e contemporanea".
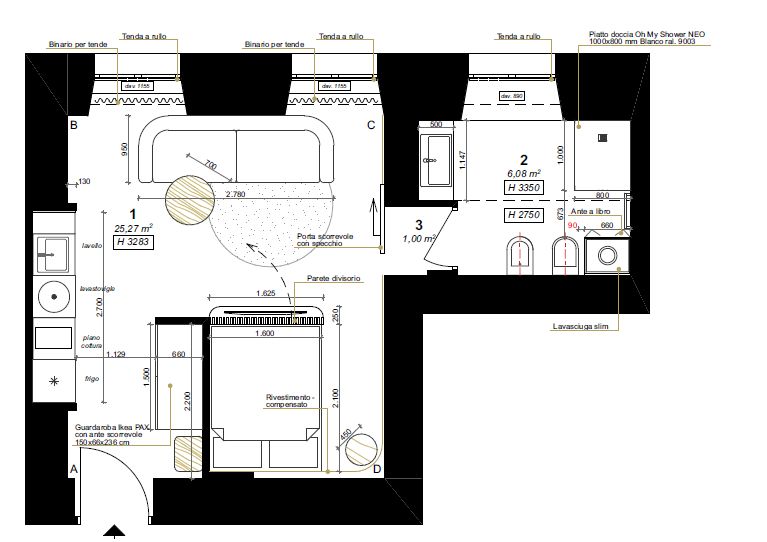
Creare ambiti funzionali circoscritti
Il progetto di trasformazione da casa a B&B è partito con l'idea di suddividere lo spazio per creare piccole zone che assolvessero le varie funzioni. Ma a causa dello spazio ridotto, la distribuzione interna si basa sul principio di integrazione tra interior design e architettura; elementi divisori e arredi su misura si fondono senza soluzione di continuità creando piccoli ambiti circoscritti e accoglienti. Un lavoro eseguito davvero al centimetro, quindi. "Abbiamo lavorato o come sarti dello spazio", continua Tomlenova. "Progettare un B&B di 33 mq significa cucire ogni funzione su misura, senza rinunciare alla bellezza".
Malgrado i pochi metri quadri disponibili, il B&B di Torino è stato suddiviso quindi magistralmente anzitutto attraverso un setto di separazione tra l'area giorno dalla zona notte. Questa partizione si collega a un pannello divisorio terra/soffitto a listelli di legno che racchiude il letto a 2 piazze e che integra la TV girevole a 360°. In modo agile e semplice, la TV si può pertanto vedere sia a letto sia accomodati sul divanetto bianco dalle forme arrotondate.
Nell'area giorno la cucina si riflette sulla porta a specchio, un'idea ingegnosa pensata per conferire una maggiore sensazione di respiro allo spazio. "La porta del bagno è mimetizzata con un rivestimento a specchio dotata di un binario a soffitto, una soluzione che amplia visivamente l'ambiente e ottimizza gli ingombri".
Una cucina architettonica
Capiente, ma discreta; funzionale, ma senza ostentare le dotazioni tecniche: così si presenta la cucina del mini B&B di Torino, una soluzione compatta e leggera, ma completa del necessario per la preparazione e il contenimento. Assecondando la struttura spaziale preesiste, la cucina è inglobata nella parete laterale al divano e, quindi, prospicente l'area living. Si tratta di una soluzione creata da Arredo3 e realizzata su misura, una piccola opera di precisione, un composèe armonioso scandito da fasce di materiali e nuance neutri che intercettano volumi percepibili solamente se osservati lateralmente.

"In origine la zona cucina non era definita: era solo di un angolo poco caratterizzato e privo di un'identità funzionale", continua Tomlenova. "La cucina è stata concepita in modo che si inserisse all'interno della struttura architettonica e in modo tale che assecondasse le esigenze di un B&B. È stata progettata su misura insieme ad Arredo3 ottimizzando ogni centimetro disponibile, per garantire praticità nell’uso quotidiano. La sua tipologia semi-aperta la collega visivamente al living, pur mantenendo un’identità propria".

Elena Tomlenova ci racconta le scelte riguardo i materiali e i colori della cucina e conclude. "I frontali in legno chiaro dialogano con i rivestimenti e con il piano di lavoro della nicchia in gres ad effetto pietra, creando continuità materica con il resto dell’appartamento. Abbiamo voluto che anche gli elementi tecnici come la rubinetteria nera di Imex e i piccoli elettrodomestici integrati partecipassero all’estetica generale, con un linguaggio coerente tra eleganza e semplicità. ".

SCHEDA PROGETTO
LOCALITÀ
Torino, Italia
PROGETTO D’INTERIOR E D’ARREDO
Archventil
TIPOLOGIA SPAZIO
Mini appartamento
DESTINAZIONE D'USO
B&B
SUPERFICIE TOTALE
33 mq
TIPOLOGIA CUCINA
Semi-aperta in nicchia
ARREDO CUCINA
Creata custum da Arredo3 – Basi e colonna in laccato bianco opaco – Frontali dei pensili superiori a portale finiti in legno naturale - Piano di lavoro e schienale in gres in effetto pietra chiara
ELETTRODOMESTICI
Cottura a induzione - Frigo, forno e cappa integrati a scomparsa – Rubinetto miscelatore nero di Imex
COMPLEMENTI E FINITURE
Lampada da terra Ozz Floor di Miniforms - Pavimenti in linoleum di Forbo, sostenibile e riciclato - Pannelli pareti in compensato marino laccato bianco - Divano Bolzano di BoConcept - Letto di Bolzan - Comodino di Saba
PIANTA PROGETTO

PIANTA STATO DI FATTO




